Nacházíte se:
rezervovaný
mám zájem o bytCena: 11 000 000 Kč

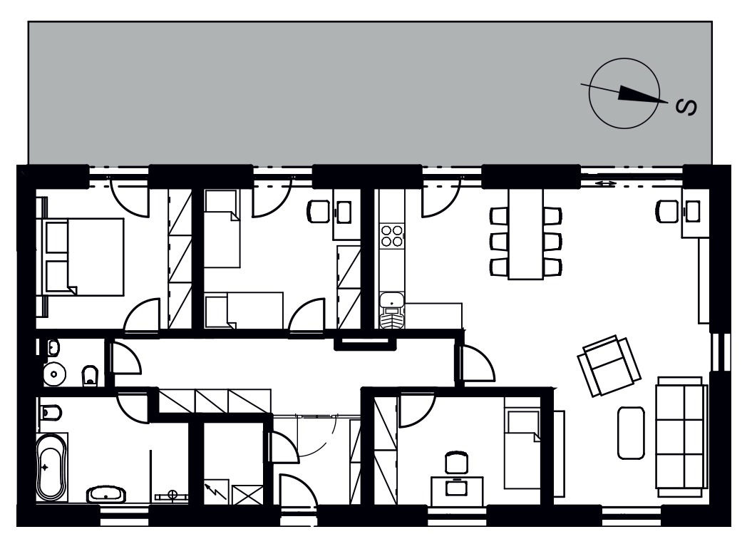
Byt B13, 4+kk
Byt B13 se nachází v budově B, v 3. NP. Součástí bytu je terasa orientovaná na slunnou jihozápadní stranu.
- V celém bytě je elektrické podlahové vytápění.
- V ceně bytu je vyhrazené podzemní parkovací stání a kóje jako úložný prostor.
- Všeobecné standardy jsou k nahlédnutí zde .
- Rozmístění nábytku, zařizovacích předmětů a způsob otvírání dveří v bytě jsou pouze ilustrativní.
Výměra bytu
| celková podlahová plocha | 118,87 m2 |
|---|---|
| užitná podlahová plocha | 112,00 m2 |
| předsíň | 17,80 m2 |
| šatna / komora | 3,05 m2 |
| obývací pokoj + kk | 45,10 m2 |
| ložnice | 12,50 m2 |
| pokoj | 12,60 m2 |
| pokoj | 10,05 m2 |
| koupelna | 9,00 m2 |
| WC | 1,90 m2 |
| terasa | 53,78 m2 |
| úložná kóje | 9,75 m2 |
| parkovací místo 1 (5,6 × 2,75 m) | 15,4 m2 |
| parkovací místo 2 (5,6 × 2,75 m) | 15,4 m2 |
Soubory ke stažení
- stáhnout soubor karta bytukarta bytu
Velikost souboru: 297.06 KB